***NOW OPEN TO OFFERS***
Smart Property Sales are delighted to offer the market this chain free, four-bedroom terraced property. In need of refurbishment and modernisation throughout, the property would be suited for both a cash or buyer's with a mortgage ready for a project. The searches have already been obtained, so there should be no delay to complete.
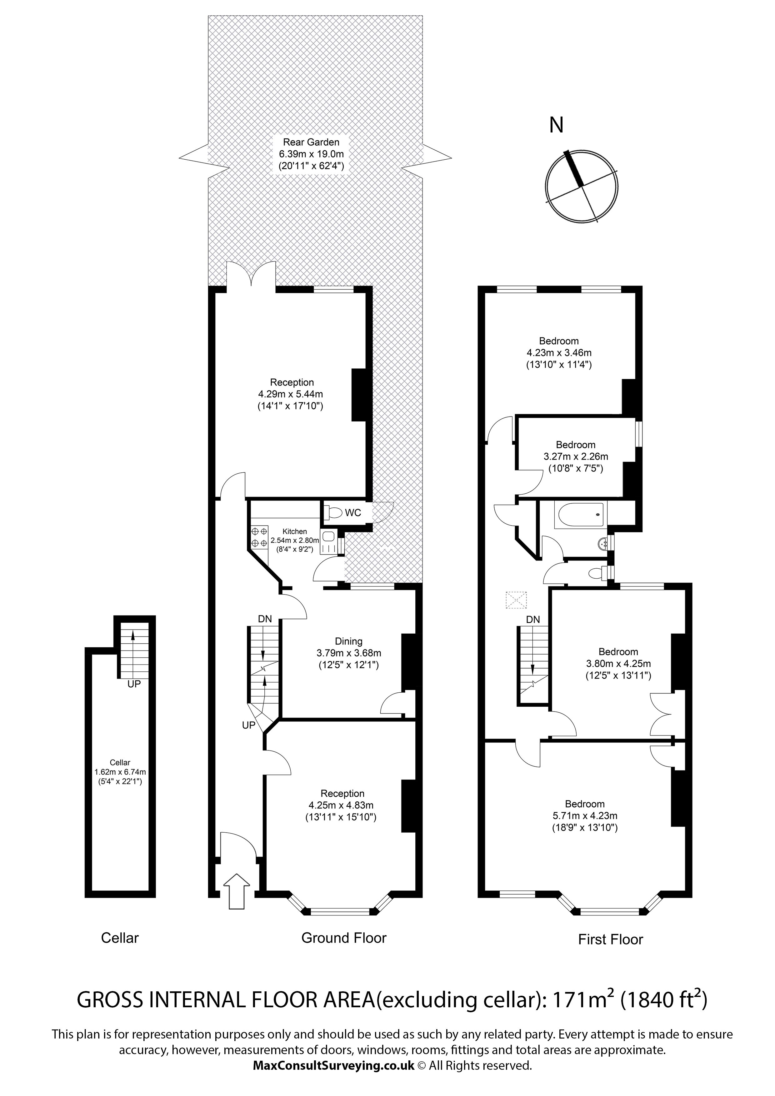
This spacious property briefly comprises: To the ground floor, there is an entrance hallway leading to a large living room, dining room, kitchen, reception room leading to the rear garden and cellar. On the first floor, there are four bedrooms and a bathroom.
Ground Floor
reception
4.5m x 4.83m
(13'11'' x 15'10'')
Dining 3.79m x 3.68m
(12''5'' x 12'1'')
Kitchen
2.5m x 2.80m
(8'4'' x 9'2'')
WC
Reception
4.29m x 5.44m
(14'1 x 17'10'')
Cellar
1.62m x 6.74m
(5.4'' x 22'1)
Rear Garden
6.39m x 19.0m
(20'11'' x 62'4'')
First Floor
Front Bedroom
5.71m x 4.23m
(18'9 x 13'10'')
Middle Bedroom
3.80m x 4.25m
(12'5'' x 13'11'')
Bathroom/WC
Back Bedroom
3.27m x 2.26m
(10'8'' x 7'5'')
Rear Bedroom
4.23m x 3.46m
(13'10 x 11'4'')
To arrange a viewing in line with government guidelines, get in touch with our sales team today.
To view the legal pack or make an offer on the property, you will need to register on the lot directly on our website.
Submit an enquiry and someone will be in contact shortly.
By setting a proxy bid, the system will automatically bid on your behalf to maintain your position as the highest bidder, up to your proxy bid amount. If you are outbid, you will be notified via email so you can opt to increase your bid if you so choose.
If two of more users place identical bids, the bid that was placed first takes precedence, and this includes proxy bids.
Another bidder placed an automatic proxy bid greater or equal to the bid you have just placed. You will need to bid again to stand a chance of winning.